ERÉA PARK & LIVING
Location: Vitosha Mountain / Sofia, Bulgaria
Investor: Private
Area: 73 602 m2
Status: Design Phase
Directory: Residiential Complex
ERÉA PARK & LIVING is a residential development planned to deliver clear value for its residents. The project comprises 115 homes supported by a defined system of outdoor and indoor amenities. Landscaped communal spaces, recreation areas, and a multifunctional community building address everyday needs and shared activities.
The development focuses on durability and efficiency. Material choices and construction methods support responsible resource use and controlled energy demand. Green areas are designed to contribute to a balanced microclimate and a calm living environment.
The residential structure includes 3 luxury houses, 3 residential buildings, 28 standalone houses, 12 twin houses, and 43 row houses. Each home benefits from a private yard framed by planting. Brick façades define a consistent and durable architectural character.
Shared outdoor facilities include an open-air gym, playgrounds, a football field, park areas, and barbecue zones. A centrally located community building accommodates a restaurant, café, retail units, a kindergarten, an event hall, and coworking spaces, supporting daily routines within walking distance.
-
Structured to support a strong community life.
Direct connection between social functions and the natural environment.
Spaces for shared activities indoors and outdoors.
A clear mix of programs that encourage interaction and daily use.
-
Designed to respond to existing topography.
Architecture integrated with the surrounding environment.
Diverse building types to meet varied residential needs.
Comprehensive functional program supporting daily life and community use.
-
Terraced planting to work with site levels.
Preservation of existing vegetation.
Varied selection of plant species.
Options for additional personalized landscaping.
-
Aligned with the site’s topography.
Hierarchical street network to organize traffic.
Controlled access to enhance security.
Shared streets that balance movement and community use.
-
Network of pedestrian streets and pathways.
Evenly distributed public spaces throughout the site.
Direct access from private yards to shared areas.
Shared streets that support safe, active movement.
-
Integration of renewable energy sources.
Flexible options for HVAC systems.
Provision for smart home technology.
Continuous video surveillance for security.
/VIEWS
The masterplan maintains a balanced density without reaching the maximum allowable development parameters. Building placement and planting provide adequate distance between homes and a clear distinction between private and shared spaces. Amenities are distributed across the site to support daily use and social interaction while maintaining a consistent living standard across the complex.
Situated at the foot of Vitosha Mountain, the site benefits from direct contact with its natural surroundings and open views across the area. The varied terrain allows different spatial experiences throughout the development.
01 – 1
01 – 2
01 – 3
02 – 1
02 – 3
03 – 4
/CONCEPT
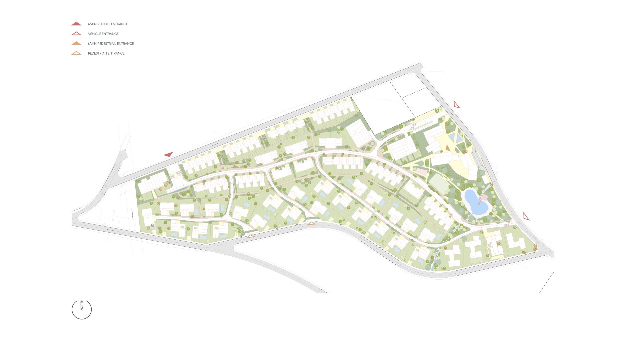
ERÉA PARK & LIVING is conceived as a gated residential complex integrated into its natural setting. Buildings are positioned to follow the terrain and orient toward favorable views. The design approach relies on careful placement, material consistency, and extensive planting to align the built environment with the site’s characteristics.
The development includes six building types: row houses, twin houses, standalone houses, multifamily buildings, high-end houses, and a public building. Row and twin houses define the main internal street and the northern edge of the site. Multifamily buildings and the public center mark the primary vehicular entrances. Standalone and high-end houses occupy the southern, elevated areas to secure open views toward Sofia. A dedicated park and sports zone is located in the western part of the property.
Vehicular access is organized through a main arterial road connecting all entry points. Perimeter access to residential units significantly reduces internal car traffic. Internal streets function as shared pedestrian and vehicular space, with changes in width, planting buffers, and alignment controlling speed and improving safety. Pedestrian routes ensure direct access throughout the complex.
The residential mix provides functional diversity while maintaining a unified architectural language and clear adaptation to the terrain. The public building consolidates multiple uses to support everyday activities within the development.
/SITE PLAN
/TYPOLOGY
/ROAD NETWORK & LANDSCAPING
The landscaping strategy is based on a gradual transition between terrain and buildings, highlighting the site’s natural qualities and screening selected elements where required. The varied topography is used to shape a comfortable environment for movement, recreation, and rest.
Planting composition guides movement through the site and creates a park-like spatial experience. Different plant forms, textures, and seasonal characteristics define zones for specific activities and social use. Species selection reflects local conditions, complemented by ornamental planting that supports the architectural structure and marks key locations.
A combination of evergreen and deciduous vegetation ensures visual continuity throughout the year. Landscaping supports circulation, shading, and gathering areas. The planting framework is designed to mature over time, reinforcing environmental performance and overall living quality within ERÉA PARK & LIVING.

